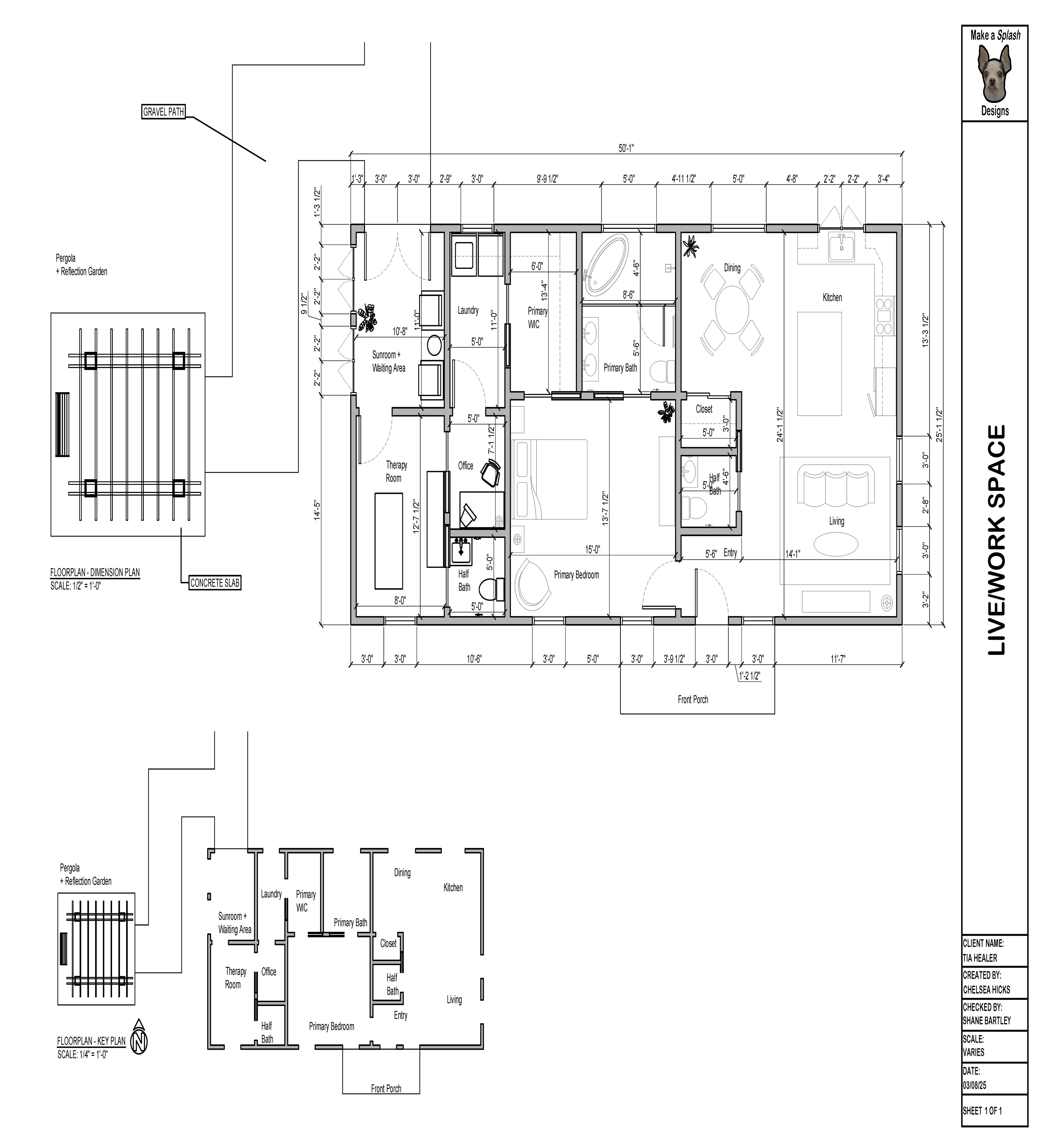
Digital Presentation III focused on learning the fundamentals of creating 2D plans and elevations in the AutoCad software.