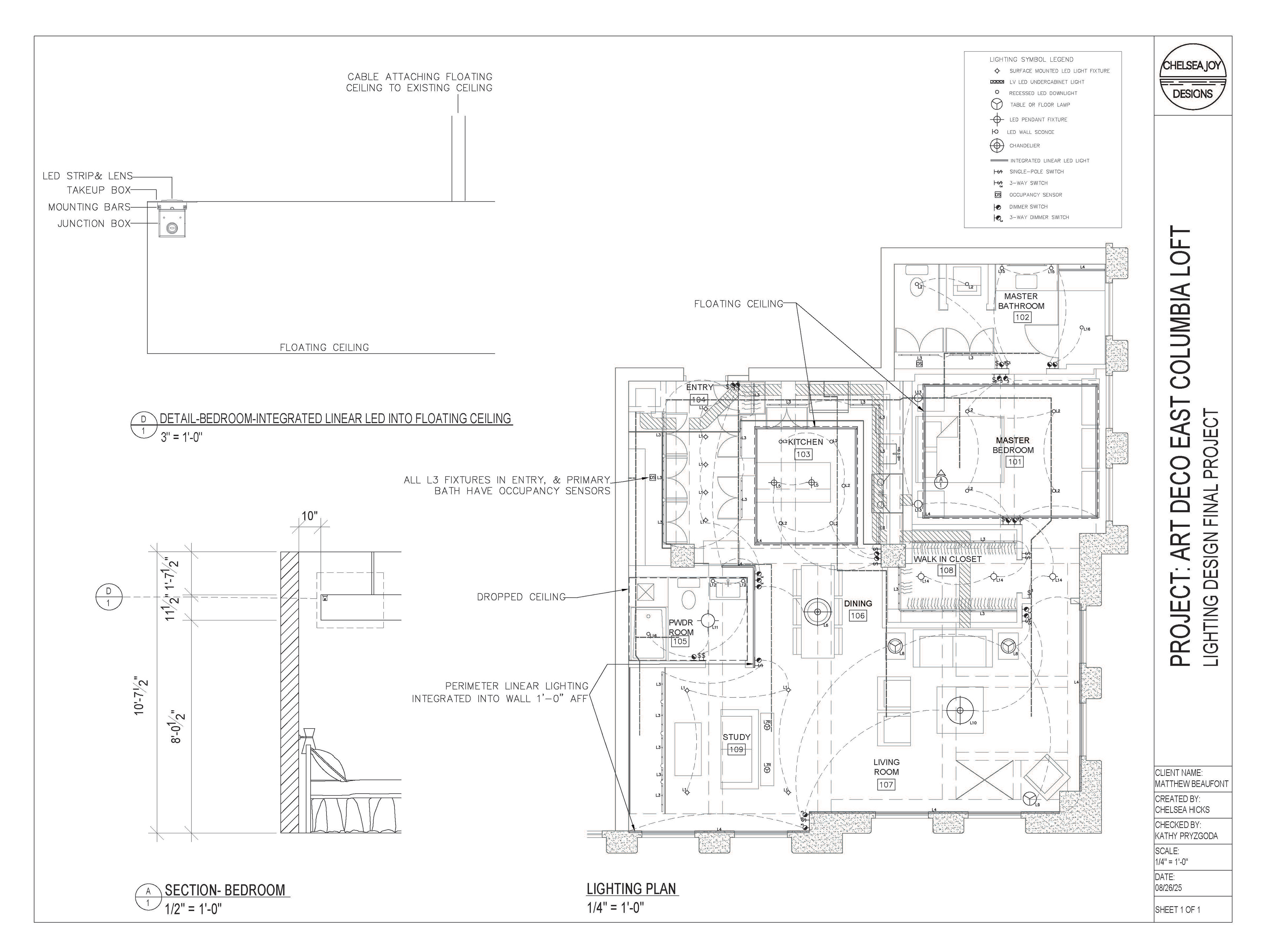
After many smaller projects and lessons throughout the quarter, Lighting Design culminated in a final project featuring our new found knowledge of making lighting selections, specifications, and a final lighting plan for a floor plan given to us by the professor.